September 14, 2014
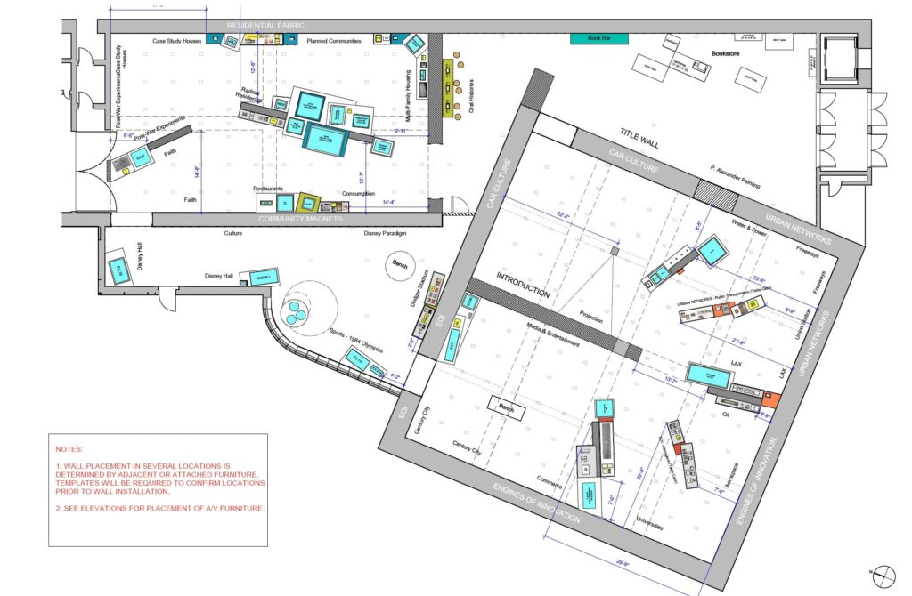
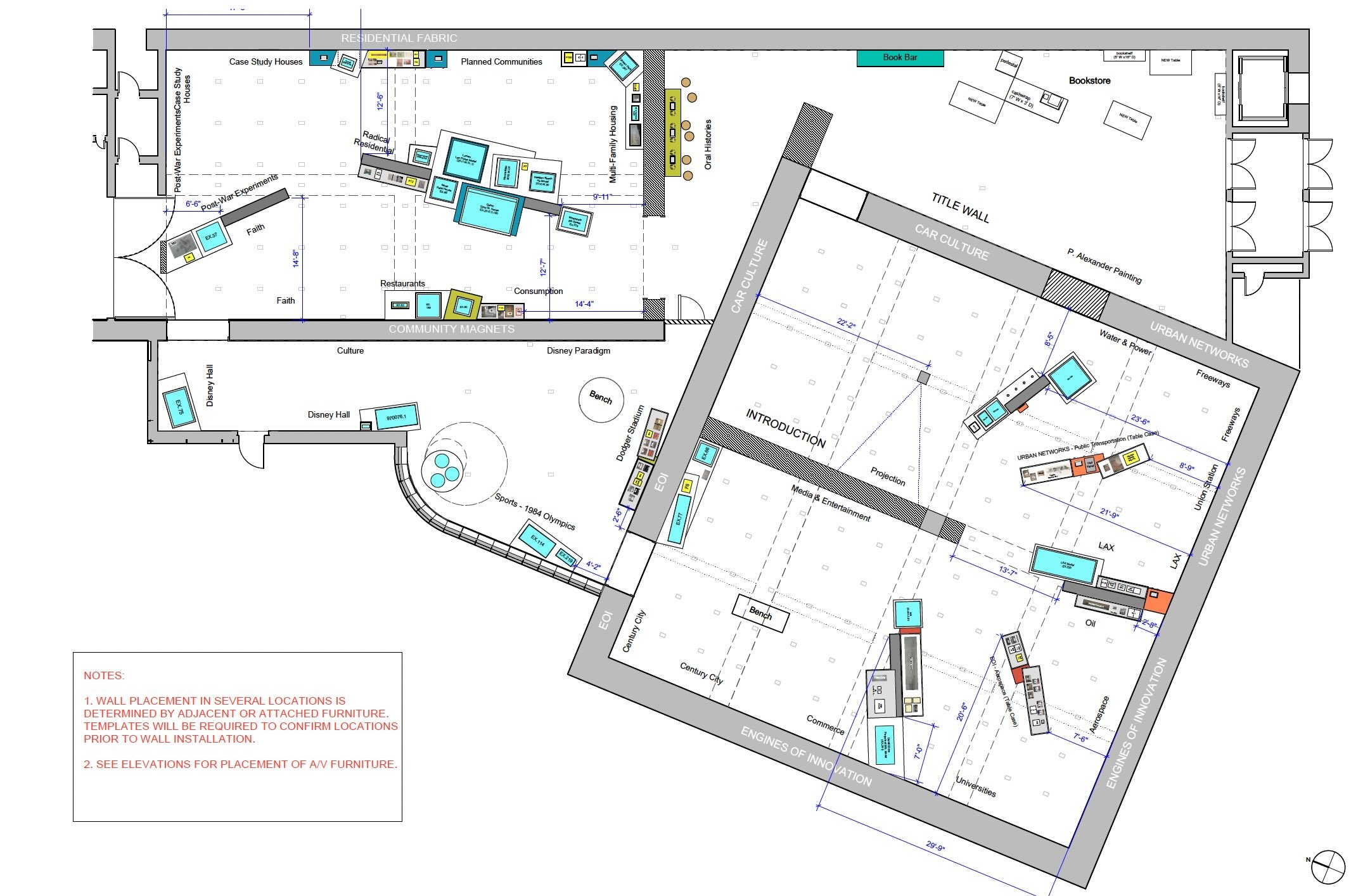
Overdrive: L.A. Constructs the Future 1940-1990, 2013
Designed in collaboration with Nicole Trudeau and Merritt Price, this landmark exhibition was the Recipient of 2013 Charles Redd Center for Western Studies Award for Exhibition Excellence (Western Museums Association). The first major exhibition to survey Los Angeles’s complex urban landscape and diverse architectural innovations. Drawings, photographs, models, films, animations, oral histories, and ephemera illustrate the complex dimensions of L.A.’s rich and often underappreciated built environment, revealing this metropolis’s global impact. This exhibition was re-installed at the National Building Museum in Washington D.C. 10/2013–3/2014
https://www.getty.edu/art/exhibitions/overdrive/
© J. Paul Getty Trust 2013.





© 2026 Christina Webb